管理物件情報

PROPERTY

アパート・マンション

大蔵

■人気のメゾネットタイプ
太陽光発電システム・オール電化
オートロック
全室UVカットペアガラス
全室エアコン完備・全室照明完備
食器洗浄器付き
トランクルーム付き・駐車場2台
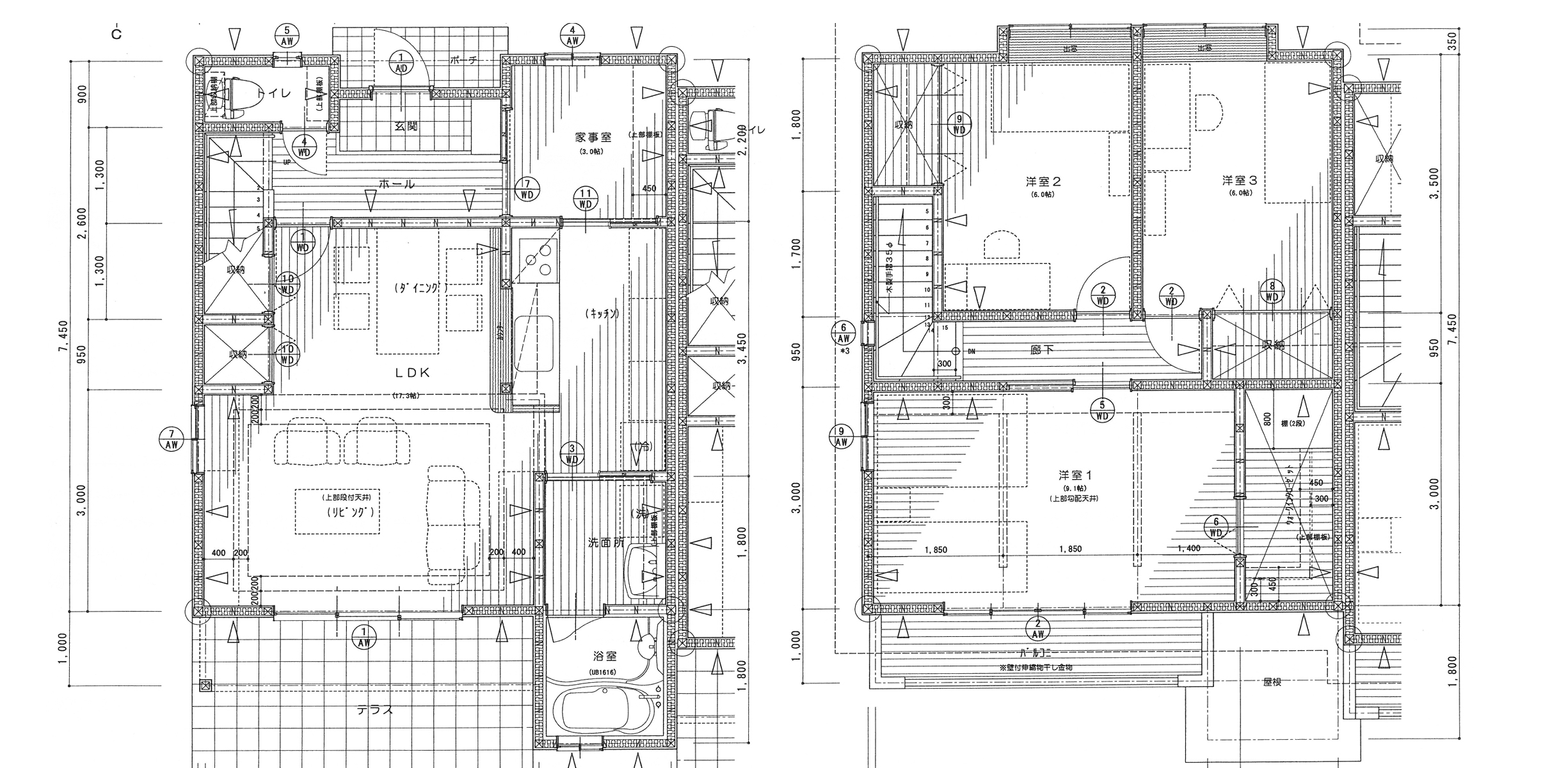
■床面積:1戸30坪(1階、2階)全4戸(両端庭付き)
■お客様専用駐車場
■駐車場の区切り幅1m
■小学校3分

EQUIPMENT設備

INFORMATION概要

所在地西条市大町字本郷1289-2 家賃・管理費等応相談/応相談
間取・築年月3LDK メゾネットタイプ 敷金・保証金・
礼金・権利金
応相談
所在階 / 階数2階建て 構造木造
専有面積98.28㎡ 駐車場
駐車場費用
使用中
現況入居中 取引態様自社管理物件
入居可能時期入居中 建築年月
交通JR予讃線 / 壬生川駅 徒歩7分

FLOOR間取り

CONTACT US物件お問い合わせ

下記フォームに必要事項をご入力ください。

    必要事項をご記入の上「個人情報の取り扱いに同意する」ボタンをチェックしていただき送信ください。
    必須項目は、必ずご記入ください。

    個人情報の取り扱いにご同意のうえ、
    送信いただきますようお願いいたします。

    管理物件情報一覧に戻る